Property Details
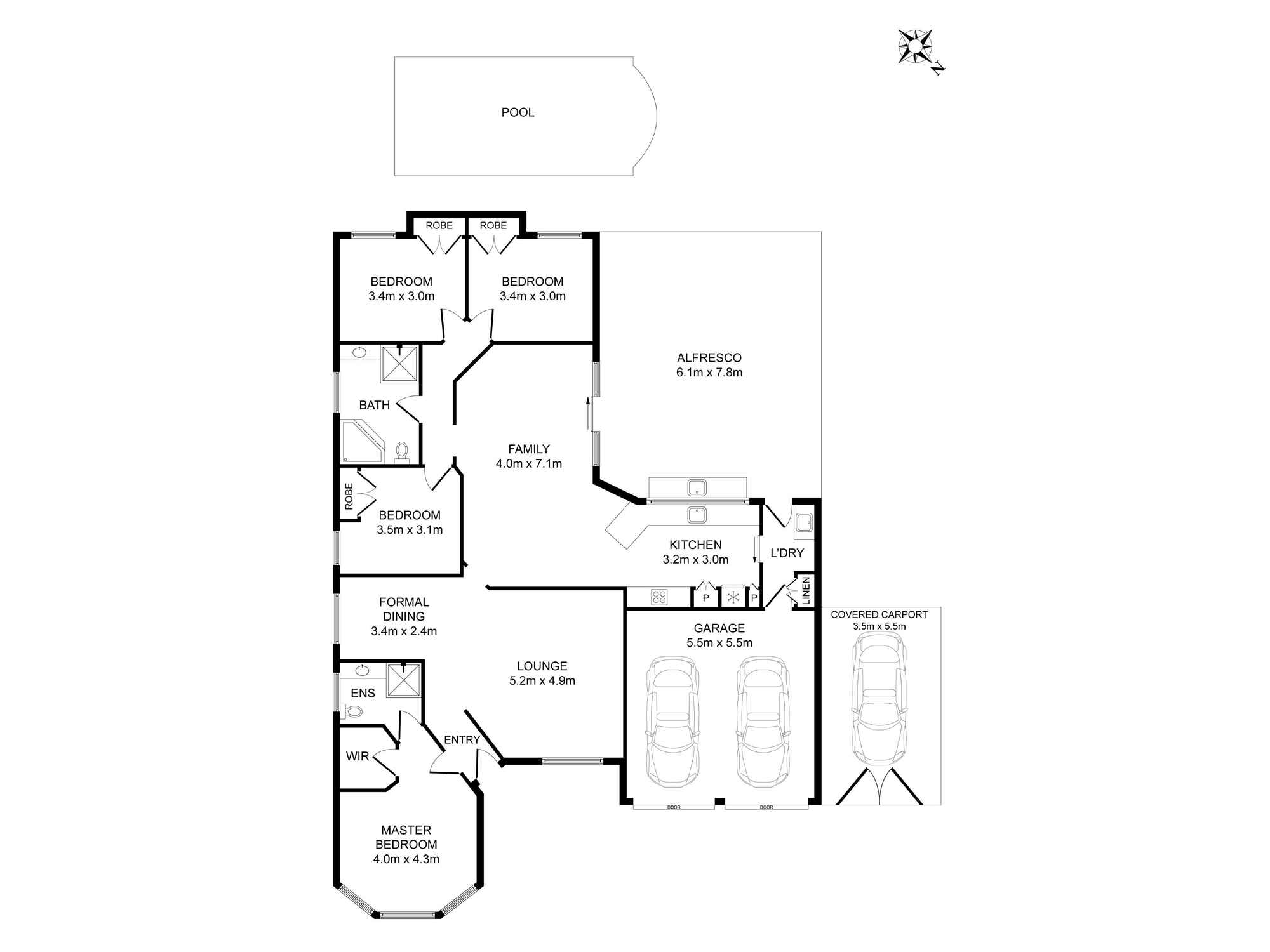
Set in a quiet, family-friendly street, this well-presented home offers comfort, space and outstanding future potential in the heart of Hinchinbrook. Ideal for families or investors, currently rented at $1000 per week. This property combines everyday convenience with lifestyle appeal and long-term value. Sitting on 637.m2 of land, the home features a practical and well-designed layout with light-filled living areas, complemented by ducted air conditioning throughout for year-round comfort. The kitchen and living spaces flow seamlessly, making daily living and entertaining effortless, while the bedrooms are generously sized and designed for comfort and functionality.
Step outside to a large inground swimming pool, perfect for summer entertaining, family fun or relaxing on warm days. The backyard offers a great balance of space and privacy, ideal for kids, pets and gatherings with friends. Positioned on a generous block, the property also presents excellent potential to build a granny flat (STCA) - an outstanding opportunity for extended family living or to maximise rental returns. Conveniently located close to schools, parks, shopping centres, public transport and major road links, this home delivers lifestyle, comfort and investment opportunity in one complete package.
Property highlights include:
• Ducted air conditioning throughout
• Spacious and functional floor plan
• Well-sized bedrooms with ample natural light
• Practical kitchen and open-plan living areas
• Large inground swimming pool
• Generous block with granny flat potential (STCA)
• Private backyard ideal for families and entertaining
• Quiet street in a popular, family-oriented suburb
• Close to schools, shops and transport
This is a fantastic opportunity to secure a quality home with lifestyle features and future upside in a sought-after location.
Disclaimer: The above information has been extracted based on visual inspection by the agent/agents representing Richardson & Wrench Hinchinbrook and by information received from the client's and their legal representative. We have not verified whether that information is accurate, and do not have any belief one way or the other in its accuracy. All interested parties should make and rely upon their own inquiries to determine whether this information is in fact accurate.
Land area
637.8 sqm (approx)
























